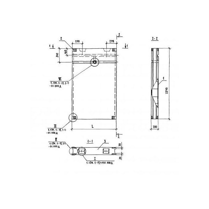
БВ 28-1-0 - это вентблок, предназначенный для использования в железобетонных конструкциях. Он обеспечивает надежную вентиляцию и защиту от влаги, сохраняя прочность и долговечность конструкции. Благодаря своей конструкции и материалу изготовления, данный вентблок обеспечивает эффективную вентиляцию и защиту от внешних воздействий, что делает его идеальным выбором для использования в ЖБИ изделиях.









