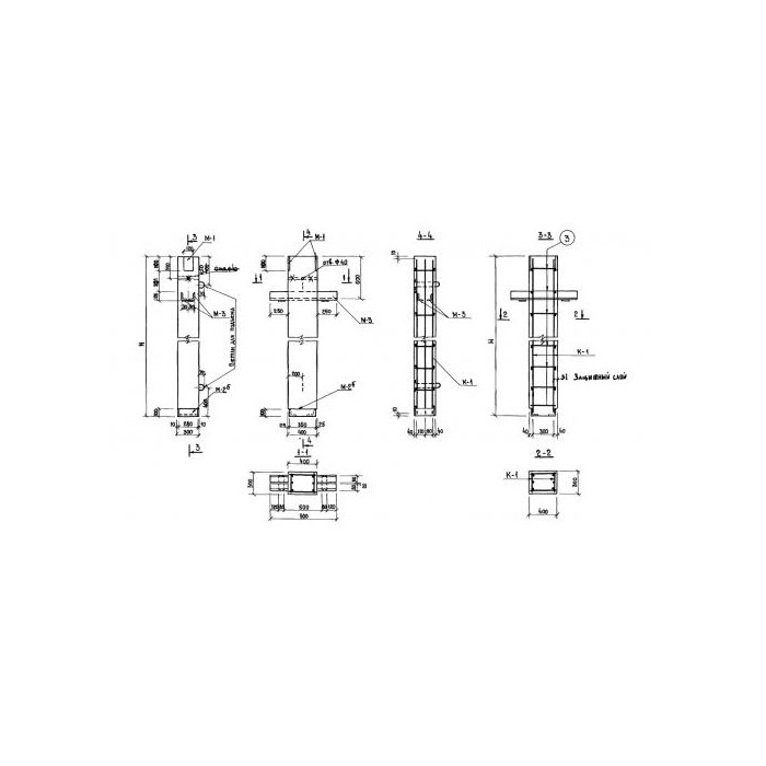
Колонна железобетонная КЛм 310 из серии 1.123 КР-1 представляет собой прочное и надежное железобетонное изделие, предназначенное для использования в строительстве. Ее высота составляет 3 метра, а сечение – 310х310 мм. Колонна имеет гладкую поверхность и качественное исполнение, что обеспечивает ее долговечность и устойчивость к внешним воздействиям. Этот продукт идеально подходит для возведения зданий различного назначения и обеспечивает надежную опору конструкции.
Колонна железобетонная КЛм 310 широко используется в строительстве как несущий элемент для создания опорных конструкций зданий и сооружений. Она применяется в жилом, коммерческом и промышленном строительстве для обеспечения устойчивости и надежности конструкций. Колонны данного типа также могут использоваться в инфраструктурных проектах, таких как строительство мостов, тоннелей и других объектов. Благодаря своей прочности и долговечности, данная колонна является отличным выбором для различных строительных задач.









